- Бренды:
- Все бренды
Газовый котел Лемакс Premier 29 станет прекрасным решением для помещений, в которых необходимо организовать качественную и стабильную систему отопления. Оборудование облачено в прочный коррозиеустойчивый корпус, поэтому не деформируется при воздействии на него механического давления. Устройство укомплектовано теплообменником из нержавеющей стали.
Особенности и преимущества:
- Цилиндрическая форма теплообменника позволяет работать аппарату в закрытых системах отопления (с 17,4 кВт)
- Покрытие теплообменника антикоррозийной эмалью с температурой воздействия 900°С и обработка ингибирующим составом
- Увеличенное рабочее давление аппарата до 3 бар (с 17,4 кВт)
- Расширенная линейка модельного ряда мощностью от 11,6 до 35 кВт
- Не требует подключения к электрической сети
- Оснащение исключительно оригинальными компонентами газогорелочного устройства и газовым клапаном 820 Nova итальянского концерна «SIT», а также инжекционной микрофакельной горелкой «POLIDORO»
- Регулятор температуры вынесен на переднюю панель, что позволяет точно выбрать оптимальный тепловой режим
- Реализована система плавного запуска
- Наличие системы защиты от перегрева, прерывания тяги, сажеобразования, а также от задувания котла
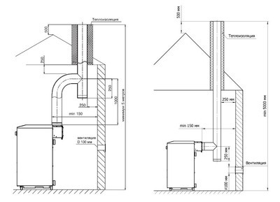
- Возможность вертикального и горизонтального присоединения дымохода
- Удобство чистки аппарата без отсоединения от дымохода за счет применения съемных крышек облицовки и тягостабилизатора
- Усовершенствованная система защиты безопасности с использованием датчика перегрева теплообменника
- Максимальный КПД за счет увеличения площади теплообмена
- изменения конструкции турбулизатора для максимальной задержки отходящих газов
- Увеличение первичного и вторичного притока воздуха
- Возможность подсоединение комнатного термостата, при помощи которого можно регулировать температуру котла относительно температуры внутри помещения
- Работа совместно с турбонасадкой «Лемакс» серии «Comfort» для принудительного отвода продуктов сгорания
- Возможность перехода на сжиженный газ
Серия Premier от торговой марки Лемакс представлена несколькими мощностями напольных котлов на газовом топливе. Одно из ключевых преимуществ линейки — это микрофакельная горелка, которая обеспечивает высокоэффективное сжигание топлива. Стоит также отметить, что оборудование облачено в прочный износоустойчивый корпус и характеризуется безопасностью эксплуатации.
Выгодная цена на котлы отопления и в частности напольный газовый котел лемакс premier 29 обусловлена, прежде всего, огромными запасами продукции на собственном складском хранении, сотрудничеством с производителями напрямую и большими партиями поставок.
Купить напольный газовый котел лемакс premier 29 возможно как, самовывозом со склада, так и доставкой по Нижнему Новгороду и области. Осуществляем отправку такой продукции как, котлы отопления, а так же другого отопительного, водогрейного и газового оборудования по всей России через транспортные компании или СДЕК. На все продаваемое отопительное и газовое оборудование имеются паспорт производителя, сертификат соответствия и качества.
